Detail from USGS quadrant map, 1953, annotated with arrow to indicate location of Carnes House, southeast of Villa Rica, Georgia.

 

 

 

 

This is part of a series of historic structure reports on the historic architecture of Georgia and the Southeast by Tommy H. Jones. It is posted here for educational purposes only and may not be used or reproduced for commercial purposes or without the express permission of the author.

 

 

 

 

 

 

 

 

 

 

 

 

 

 

 

 

 

 

 

 

 

 

 

 

 

 

 

 

 

 

 

 

 

 

 

 

 

 

 

 

 

 

 

 

 

 

 

 

 

 

One of the oldest and perhaps the best-preserved log house in the metropolitan Atlanta area, the house is thought to have been built by John Thomas Carnes (1787–1860) about 1828, not long after the land was ceded by the Creek Nation. The house was occupied into the 1950s and was owned by Carnes descendants until the 1980s when Douglas County acquired much of the surrounding area and established the Clinton Nature Preserve. The building is known as the “Carnes Log House” to distinguish it from the later, wood-framed house built by one of John Thomas Carnes’ daughters and her husband in the mid-nineteenth century, which is also in the Preserve. Both structures are part of the National Register-listed Carnes-Clinton Farm Historic District. The 200-acre park was donated to Douglas County by Ms. Annie Mae Clinton (1896–1983), a great-granddaughter of John Thomas Carnes, with her will stipulating that the park would remain primarily in its natural state.

Few buildings remain from the earliest days of white resettlement of west Georgia and, of those that do, fewer still have survived without major remodeling and additions. In spite of neglect and deterioration in the last half of the twentieth century, the Carnes House represents a rare example of nineteenth-century residential architecture with a degree of integrity that is seldom found today.

Figure 1. Carnes House from the south. (Author's photograph, 2008)

 

Authorized by the Douglas County Board of Commissioners in 1999, the present study originally included recommendations for stabilization and preservation of the house and its two surviving outbuildings, one a log corncrib, the other a log stable that was already in ruinous condition. The site was badly over-grown, but significant features of the historic landscape could still be identified. The study included a thorough, non-destructive examination of the existing buildings to establish original construction and later changes, as well as the general condition of the materials.


Historical Context

Descended from Scots-Irish who immigrated to Connecticut before 1687, John Thomas Carnes was the son of Joseph Carnes (1753–1838), a Maryland native and Revolutionary War veteran, and his wife, Virginia-born Comfort Ann Cash (1753–1869). They married in Virginia in November 1783, but the four children who have been identified—twins Lydia and David, born in 1784; Peter (1795–1863); and John Thomas—were all born in North Carolina. In the 1820s, all of them (and some of Comfort’s Cash relations as well) moved into the newly ceded Creek territory in western Georgia Piedmont. Whether the Carnes family moved directly from North Carolina to Georgia, or if they lived somewhere in northeastern Georgia before moving to the western part of the state, is unclear. [1]

 

Figure 2. Detail from the USGS Marietta quadrangle, surveyed in 1887-8, edition of August 1901, reprinted in 1944, annotated with an arrow to locate John Thomas Carnes’ house, on what was still a well-traveled road connecting Villa Rica and Campbellton, the first county seat of neighboring Campbell County, created out of parts of Carroll, Fayette, and Coweta Counties in 1828.

 

Precisely when and where John Thomas Carnes married Mary Magdalene Smallwood (1790–1869) is uncertain, but if the federal census is correct, their first child, Joseph (1818–1899), was born in Georgia. Six more children can be documented through the census—Richard, Frederick, Mary Ann, Loritha, Thomas A., and Nancy—but there were almost certainly others.

Comfort Cash Carnes was a charter member of the New Hope Primitive Baptist Church when it was organized at Villa Rica in 1828, one of the first Baptist churches west of the Chattahoochee River in northwest Georgia. Although the church itself is defunct, the cemetery where many of the Clinton family are buried remains intact a mile just east of downtown Villa Rica, a couple of miles or so northwest of the Carnes House.

Some believe that the Clintons were among the numerous squatters who swarmed the Creek Nation after the Second Treaty of Indian Springs was signed in February 1825. The State quickly authorized a survey and land lottery to distribute the land, but the treaty was ruled invalid and a new treaty had to be negotiated and signed in Janury 1826. This final treaty included the stipulation that the Indians would have possession of their lands until 1 January 1827, but in spite of that, the State of Georgia continued to flout federal law and went ahead with its survey and land lottery even before the final Indian claims were extinguished. By 1827 there were no more Creek in the state.

The 202½ tract of land on which the Carnes House sits—Land Lot 109, 2nd District of what was originally Carroll County—was drawn by Elizabeth Farmer in the 1827 lottery, but many of the “fortunate drawers” in the land lotteries never occupied their claims and often never intended to. Farmer may have been only too happy to take $200 from Carnes for her claim.

Figure 3. USGS map of the vicinity of the Carnes House, 2018, annotated with an arrow to locate the house.

 

The 1830 federal census of Carroll County, which then included Douglas County, enumerated Joseph and Comfort Carnes, with eight others in the household, although not all of them were necessarily their children. The census also enumerated in separate households their children Peter, John Thomas, and their widowed sister Lydia along with their small children.
It is not clear why the Carnes families picked up and moved to Georgia. There was a minor gold rush around Villa Rica (hence the name) before significant deposits were found in northeastern Georgia in 1828, but it is more likely that they were simply farmers looking for fresh land. Richard (1828–1908), their fourth child, was born in 1828, likely in their new log house in Carroll County.

By the 1840s, John Thomas Carnes owned not only his home lot, Land Lot 109, but also Land Lot 116 which adjoined it on the north, giving him 405 acres of good bottom land along Keaton Creek. By 1842, he was also being taxed on Land Lot 82, also 202½ acres, located along the Dog River a mile or so southwest of his home lot.

The 1860 census showed Carnes with $1,950 in real estate and $4,225 in personal property, almost all of which would have been enslaved African Americans. The 1840 census had shown Carnes claiming ownership of a teen-aged African American girl and a boy who was under the age of 10, but somehow the slave censuses in 1850 and 1860 did not enumerate any slaves owned by John Thomas Carnes. When he made his will in April 1860, however, he left to his wife “negro boy named Peter, negro boy Bob, negro woman Peggy and two negro girls Sara and Parala.” Peggy and one of the others might have been the slaves enumerated in 1840.

John Thomas Carnes died in the fall of 1860 and was buried at the New Hope Primitive Baptist Church at Villa Rica. In 1861, his daughter Mary Ann married Christopher Columbus Clinton (1832–1911), and they may have been responsible for improvements to the house before her mother’s death in 1869. She was buried next to her husband at New Hope.

Figure 4. The house built by the Clintons shortly after the Civil War. (Author’s photograph, 2008)

Not long after their marriage, the Clintons built their wood-framed house, which still stands, albeit in poor condition, on Clinton Road a half mile or so northeast of the Carnes House. They are known to have had four children, the oldest of which was Charles M. Clinton (1862–1923), who with his wife Harriet (1873–1954) were the parents of Annie Estelle Clinton (1896–1983). Stipulations in the latter’s will left most of her parents’ farm for establishment of the Clinton Nature Preserve.

The Carnes House is thought to have been occupied into the 1940s, when electric lighting was isntalled, but by the early 1950s, the house was probably abandoned. The roads across the creek had become impassable, and there was no longer a connection between Pool and Clinton Roads at all. If the house was occupied after that it might have been for illicit purposes. [2]


Site

Located in the southwest side of the Clinton Nature Preserve, the house, its spring, and outbuildings are located along an abandoned portion of Pool Road. The road must have originated in the early second quarter of the nineteenth century and was a well-traveled thoroughfare connecting the old Chattahoochee River crossings near Rivertown and Campbellton, a dozen miles to the southeast, with Villa Rica, 2½ miles to the northwest, and west Georgia. Until the mid-1960s, it seems to have been known as Villa Rica Road; by 1967 it was being designated Pool Road.

Figure 5. Site plan for John Thomas Carnes House. (T. Jones, 1999)

 

What became known as Clinton Road is now abandoned except as the entrance to the nature preserve, but it ran westward from Ephesus Church Road before turning south to intersect Pool Road just east of Keaton Creek and just a few hundred feet north of the Carnes House. A third road intersected Pool Road just west of the creek. Tyson and Suddeth Roads mark its route today.

Two abandoned, late nineteenth or early twentieth century houses, badly overgrown and deteriorated, remain standing on the north side of old Clinton Road a few hundred yards northeast of the Carnes House. They may have been built by Carnes or Clinton descendants.

The Carnes House itself sits less than 20’ feet from the old public road and some 665’ feet east of Keaton Creek. It was built at the edge of large natural rock outcroppings that are especially pronounced around the northwestern side of the house and in the eroded road bed to the northeast. The rear of the kitchen and dogtrot were built on a rock outcropping as well.

Figure 6. The approach to the Carnes House from the northeast. (Author’s photograph, 2008)

 

If Carnes followed typical patterns, he would have used timber cut from his property with which to construct his house. At least one stump left over from the initial clearing of the site in the late 1820s is still visible under the northwest corner of the original pen. It could aid in establishing a dendrochronogy for the house, and a more or less precise date for its construction. Carnes would have cut many if not most of the trees on his land for farming (and to construct his house), but the entire site appears to have been clear cut at some point in the mid-twentieth century. The walnut trees may be the only trees that pre-date the second- and third-growth timber and undergrowth that have engulfed the site since it was last farmed, which was probably sometime in the first first quarter of the twentieth century.

Although badly overgrown, features of the house’s original surrounding landscape can still be identified. The immediate “yard” of the house is in large part defined by a terracing of the land in a shallow arc from the rock outcroppings on the northwest side of the house to the small stream that flowed from the spring along the road a hundred feet south of the house. During the antebellum period, when livestock, especially hogs, were free-roaming, a rail fence probably encircled the house yard although no physical evidence for such an enclosure has been located.

The Carneses built a pair of rock retaining walls about 8’ in front of the house and generally parallel to it. There may have been some sort of stepped entrance in the wall in front of the dogtrot but that is not clear amid the existing jumble of stones and vegetation in the area. At its northern end, the stone wall ends in a small arc that may have encircled a large tree that was left standing on the site but for which no evidence is now visible. To the south, a shallow row of stacked stones appears to continue the line of the retaining wall another 20’ to the south along the old road.

Across the road from the house, another stone retaining wall creates what may have been a bed for ornamental shrubs and flowers, as suggested by the presence of a species of oriental Spirea above the southern end of the wall. Winter jasmine (Jasminum nudiflorum) is growing off the northwest corner of the house and a species of rose is climbing in the trees about 30’ from the north end of the house. Common day lilies ((Hemerocallis fulva), can also be noted around the site, and there may be spring-flowering bulbs and other non-native ornamental plants as well beneath the undergrowth. While the individual plants of these non-native species are not old, they represent the sort of ornamental plant material that is often found on nineteenth and early twentieth century farmsteads.

Figure 7. Front of the Carnes House. (Author’s photograph, 2008)

Figure 8. The spring at the Carnes House. (Author’s photograph, 2008)

A pair of cedar trees (Juniperus virginiana), which were also a typical feature on the landscape of many 19th-century farmsteads, was planted in the front yard of the house, but only the stumps of these remain. A number of younger cedars, which are indigenous, have volunteered around the site. Behind the house, just west of the terrace, bottles and other debris indicate the site of an old trash dump that was probably associated with twentieth-century occupancy of the house.

A couple of hundred feet south of the house, a spring rises about 8’ from the east side of the old road bed. Flanked by a shallow terrace in the hillside, the spring is partially curbed by three stone slabs, generally 6” thick and about 24” long, set upright on three sides of the spring. The slabs on each side have been tooled to slope toward the front. Broken stones in front of the spring may represent a fourth slab or may be an indication that stones paved part of the surface around the spring. Probably in the late nineteenth or early twentieth century, a terra-cotta pipe, 24” inside diameter and with a flared end, was inserted upright in the spring so as to provide an additional basin in which the spring water could accumulate without being contaminated by surface runoff.

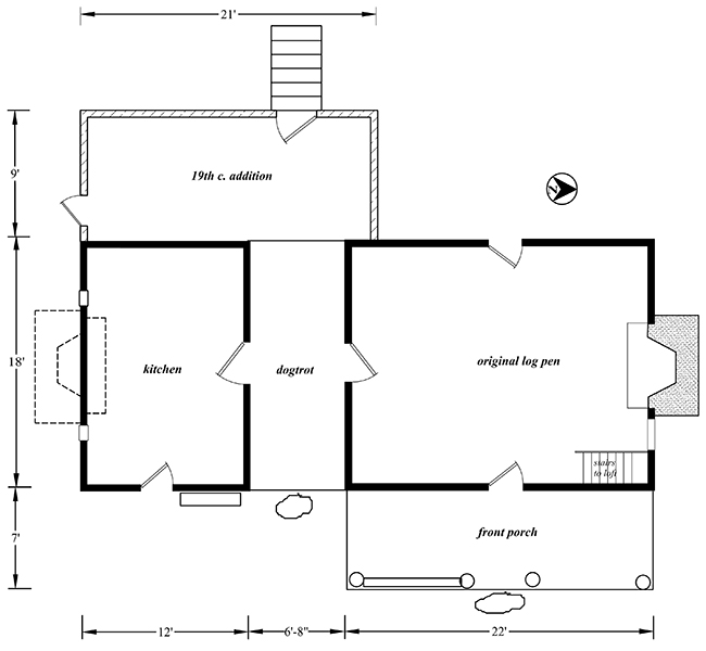
Figure 9. Floor plan of John Thomas Carnes House. (T. Jones, 1999)

 

The House

The Carnes House was probably built around 1828 and is an outstanding example of the kind of log building that typified the earliest building on the Southern frontier. By one estimate, there were perhaps ten to twelve thousand log buildings remaining in Georgia as late as the 1950s, but many, if not most, of these have since been lost. Of those that do survive, the Georgia Department of Natural Resources’ Historic Structures Survey suggest that very few have retained architectural integrity. In addition to the importance of some of the house’s unusual architectural features, the Carnes House may be the least altered of them all.

Figure 10. The Carnes House from the southeast. (Author's photograph, 2008)

 

The Carnes House is particularly important because of its use of hewn timbers and mortise-and-tenon joinery throughout, and because it is remarkably intact. By the time it was built, sawn lumber was not unknown, and many, if not most log houses from the second quarter of the nineteenth century in the Georgia Piedmont were built with sawn roof rafters and, often, sawn floor and ceiling joists as well. Goodwin’s (ca. 1835) in DeKalb County and the George Power House and the Power-Hyde House (both ca. 1845) in Cobb County were all built in this manner.

The absence of machine-sawn lumber in the Carnes House (except for later alterations) supports an early construction date when local sawmills had yet to be established. Instead, Carnes built the log pens and dogtrot of his house almost entirely of materials from the site, using trees he probably felled and worked himself. He did, however, use milled lumber for flooring and, perhaps, to construct simple board doors. A very few machine-cut nails were used in the process.

The original house consisted of the single log pen and full-width front porch at the north end of the present structure. The smaller log pen, which was used as a kitchen, and the dogtrot between the two pens may have been added at an early date, using similar materials and construction methods. Two differences between the two pens suggest that they might not have been constructed at the same time or, at least, not by the same person: the character of the half-dovetail joinery and of the chamfering of the projecting beams on the kitchen, a feature not present on the original pen. In addition, the structure of the kitchen and the dogtrot is entirely separate from that of the original pen. If they had been built simultaneously, even if by different people, the sills would probably have been continuous the length of the structure or, at least, lapped and pegged where they joined.

Figure 11. The approach to the Carnes House from the northeast. (Author’s photograph, 2008)

Figure 12. One of the replica cabins at Valley Forge National Historical Park. The Carnes House may have had this type of simple roofing as well as a mud-and-wood chimney. (Wikipedia Commons)

Like most historic houses, the Carnes House is the product of a number of additions and alterations. Rarely have early log buildings survived totally unaltered since, more often than not, the intent from the beginning was to improve and expand the original log building by numerous changes and additions. The famed British naval officer Basil Hall, travelling through east Georgia in the 1820s, noting the primitive character of a log residence that he visited, interviewed the owner who explained what was, in effect, a typical evolution that occurred with many pioneer houses:

When he [the owner] first began farming in the woods, he had lived in the small log-house which I saw in the back court adjoining the kitchen. In the course of time, as more land was cleared, and his means were thereby increased, he had been enabled to build the new house which we were in, close to the roadside. I asked him how he came to have no windows in it. “Oh,” said he, “we never make the windows in the first instance, but build up the walls with the logs, and then go into that matter; but I hope, in the course of the year, to put in a couple of glazed windows. After which, I shall go on gradually till I make it all comfortable.” [3]

The Carnes House is unusual in that so few of the typical improvements, such as installation of more windows or exterior siding and enclosure of the dogtrot, were ever made. On the interior walls, boards were nailed across the gaps between the logs, but that may not have occurred until the 1850s. Not until after the Civil War did the Carnes panel the floor, ceiling and walls of the original log pen using tongue-and-groove boards. The stairs to the loft were probably added at the same, but the loft itself remained unfinished except for boards laid across but not nailed to the joists. In contrast, the kitchen was never improved in any sort of significant way at all, except for the installation of a free-standing wood-burning stove in the late nineteenth century.

Figure 13. The approach to the Carnes House from the northeast. (Author’s photograph, 2008)

In the original pen, there is a single, small window opening once contained a glazed sash, but the three other window openings in the house show no evidence that they were ever more than simple, shuttered openings in the walls. The original fireplace and chimney, which may have been a primitive mud-and-log chimney, was replaced with a mortared stone chimney in the late nineteenth century.

The wood-framed addition at the rear of the house could have been present in some form at an early date, but the present structure appears to date to the late nineteenth or early twentieth century. There were never any interior wall or ceiling finishes. The addition was in such poor condition that it was substantially rebuilt when the building was repaired in 1999.

Figure 14. Looking to the southwest in the attic of the Carnes House. (Photograph by Brian Coffey)

Figure 15. Northwest corner of original log pen. (Author’s photograph, 2008)

Figure 16. Log purlins at north end of original pen. (Photograph by Brian Coffey, 2019)

Figure 17. Chimney and window at north end of original pen. (Author’s photograph, 2008)

Figure 18. Front wall and intersecting interior ceiling joists. (Photograph by Brian Coffey, 2019)

Figure 19. Mid-twentieth century electrical fixture on front porch. (Photograph by Brian Coffey, 2019)

The original roofing was likely to have been riven boards laid across the purlins, but split-shake roofing probably replaced that before the Civil War. After the war, the early roofing was likely replaced again by then-modern, machine-sawn, wooden shingles in the late 19th century. Corrugated metal roofing replaced the wood shingles in the early twentieth century; that more than anything else ensured preservation of the house into the late twentieth century.

Electric lighting was installed during or after World War II, but the house never had running water. The site of an outhouse has not been discovered. The house is reported to have been abandoned in the mid-1950s. Shortly before the County acquired the site in 1987, a new metal roof was installed on the house, but there were no other improvements to the building or to the site until 1999.


Original Log Pen

Measuring about 18’ east-to-west and 22’ north-to-south, the log pen at the north end of the building is the oldest portion of the house. The log walls rise to a height of about 10’-4” and are made up of twelve logs, mostly pine, each 8-10” in diameter, hewn roughly square, and joined by half-dovetailed joints at the corners. The sill at the front of the house is oak, roughly hewn to about 10” square; the original back sill was replaced, probably in the late nineteenth century, by circular-sawn timber, also oak but only 9” by 9”. Sills are set on stacked, stone piers placed at the four corners. The foundation appears to have been underpinned with stacked stone cribbing that survives intact only around the southeast corner of the pen.

Gable ends are built up with logs as well and, as noted above, the roof is put up with log purlins, 5” or 6” in diameter, left in the round except for slight flattening on top. These run end to end (north to south) in the building and, at the north end, extend about 3½’ beyond the end walls to form a shelter for the chimney. A wood-shingled roof was installed in the late nineteenth century using slab-sawn, pine decking nailed to split-oak battens attached perpendicularly to the purlins. Only a few parts remain of the wood-shingled roofing, which was replaced in the early twentieth century by galvanized metal sheets. That metal roofing was removed (most of it remained in a pile behind the house until 1999) and replaced by the existing corrugated metal roof in the early 1980s after the County acquired the site.

The logs may never have been chinked, a not uncommon omission in the South where, even in the harsher climate of the Smoky Mountains, log houses were sometimes left without chinking. The only mud chinking is above the fireplace opening at the south end of the house, but that may be residue from a mud-and-log chimney. Boards or slabs were nailed horizontally to the interior face of the logs to cover the significant gaps that were left between the individual logs. In the case of the Carnes House, these boards cannot have been a part of the original construction, since their circular-saw marks indicate that they were installed after the 1840s. Moss and other materials besides clay may have once been used for chinking in the original house.

 

Interior

 

Figure 20. North end of the original log pen. (Author’s photograph, 2008)

Until the interior was paneled in the late nineteenth century, the log pen appears to have had no other real interior finishes. The floor consisted of nine logs,  9" to 11" in diameter, left in the round but hewn flat on top. Floor boards, which still survive under the later flooring, were plain, pine, 10" to 12" wide. There are nine ceiling joists, each hand-hewn and planed to about 3½" to 4" by 4½" to 5", but there is no evidence of any original ceiling boards.

The floor, walls, and ceiling on the interior of the original pen are paneled with tongue-and-groove, pine boards, ⅞" thick and with a face 3¼" wide.  The boards are installed against 1⅞" x 3¾" studs on about 48” centers. Circular-sawn and installed with machine-cut nails, the material appears to date to the last quarter of the nineteenth century.

Figure 21. Staircase and window opening at northeast corner of original log pen. (Author’s photograph, 2008)

Figure 22. Northwest side of the original pen. (Author's photograph, 2008)

Figure 23. Southwest side of the original pen. (Author's photograph, 2008)

Figure 24. One of two peepholes cut into the east (front) wall of the original log pen. (Author's photograph, 2019)

Contemporaneous with the paneling is the unusual staircase in the northeast corner of the pen. It consists of six steps, each with a 11½" rise and a 9¼" tread. The risers are set at an angle that, with the rise of each step, produces an almost ladder-like staircase. The stringers are closed by paneling which extends to the floor to create a small closet underneath the staircase. The opening to the closet is 1'-10" by 4'-0" and appears never to have had a door. In the loft, there is no evidence that floor boards have ever been nailed to the hewn joists but were probably laid without nails, since these lofts were typically used as a sleeping area, usually for the children.

A single window opening is located on the east side of the fireplace. While there may have been an opening at that location from the beginning, the existing 9-light, fixed sash, 2'-3" by 2'-9", may not have been installed until later, perhaps along with the paneled interior. The cabin has both front and back doors, which were probably original features of the house.  The door to the dog-trot was probably added at the time the kitchen and dogtrot were constructed. The front door measures 2'-10" by 5'-11"; the back door, 2'-8" by 5'-6"; the door to the dogtrot, 2'-9" by 5'-8". Both surviving doors (the dogtrot door is missing) are constructed of plain boards, cross-braced on the inside, and nailed with machine-cut nails.

The existing chimney at the north end of the pen is almost certainly not original to the house. Built of roughly-dressed stone set in a lime-based mortar, it is similar to the mid- to late-19th century stone chimneys that still stand in other parts of the Preserve. This chimney probably replaced an earlier chimney that may have been built of wood and mud in a manner that was often found in the earliest of the pioneers’ log cabins. The chimney base rises directly from the ground to a height of about 8½' where the shoulders step into a square shaft that rises another 10' to the top. There is no visible spread footing. The stones are all roughly-dressed to rectilinear proportions in varying sizes, with the largest being about 3" by 8" by 12". The interior fire place opening is created by a shallow stone arch and measures about 4'-3" wide, 2'-10" high and 2' deep. The hearth is made up of large, flat stones; both it and the stone fireplace surround have been covered by a lime-based stucco. The mantle shelf is a plain board mounted on triangular wooden brackets.

Figure 25. Looking south at front porch.(Author's photograph, 2008)

Figure 26. Front porch. (Author's photograph, 2008)

Two curious holes have been cut through the paneling of the front wall between the front door and the dog trot. Allowing visibility through the space between the third and fourth logs of the front wall, both are located about 30" from the floor, with the one close to the door measuring about 3" by 4" and the other, which is located about midway of the wall between the door and the dogtrot, measuring about 2" by 6". While the National Register information suggests that these may have been “gun holes,” presumably for fending off Indian attacks, that certainly is not the case. The fact that these holes were cut through the late-nineteenth century paneling indicates that their purpose was more mundane and that they were probably installed simply to allow the Carneses to see who might be approaching the house from either direction without having to open the front door.

 

Front Porch

The shed-roofed front porch, whose structure is an integral and original part of the log pen, is 7' deep and extends the full width of the original log pen. The plain, sawn floor boards are 10"-12" wide and were laid on two log sleepers that appear to have been set directly on the ground. The center sleeper is an undressed log, flattened on the top; the outer or front sleeper is also log, roughly hewn to a square dimension. The fact that the existing floor boards appear to be mid- to late-nineteenth century in origin could indicate that the porch floor itself was a later addition to the house.

Figure 27. The front side and north end of the kitchen.

The porch roof structure, most of which is an original feature of the house, is supported by the top logs of the end walls of the house which are extended from the front wall and joined by a hewn header, roughly 8" by 6" and pegged to the extended side logs. The header supports a mixture of rafters and slab-sawn decking, at least some of which  may have replaced earlier material. Most of the rafters appear to have been chosen, worked and installed in a rather haphazard way and, along with the presence of saw milled 2" by 4" rafters, may be an indication that these  materials were installed late in the nineteenth or early twentieth century, perhaps when the first metal roof was installed. The original posts that support the roof were probably undressed cedar posts set on rocks placed directly on the ground. These appear to have been replaced by the present sawn 4" by 4" timbers in the late nineteenth or early twentieth century, perhaps when the wood floor was installed. A plain board shelf, about 1" by 9", between the two posts on the south end of the porch appears to be a contemporaneous feature.

Figure 28. Dog trot and south wall of original pen. (Author's photograph, 2008)

Figure 29. Dog trot and north wall of Kitchen. (Photo by Brian Coffey, 2019)

Figure 30. Framing for stovepipe flue in southwest corner of kitchen. (Author's photograph, 2008)

Figure 31. South end of kitchen. (Photograph by Brian Coffey, 2019)

Figure 32.West side of kitchen. (Author's photograph, 2008)

Figure 33. Mid-twentieth century electrical fixture on front porch of log pen. (Photograph by Brian Coffey, 2019)

Kitchen and Dog Trot

The kitchen (12' by 18') and dog trot (6'-8" by 18') are part of a single log structure that abuts but is not attached to the original log pen. Oak sills, hewn to about 9" by 9", are set on stacked stone piers and extend beneath the front and rear of the dogtrot. These sills support the walls which are composed of nine logs that rise to a height of about 8'-6" on the front and rear and continue to about 12'-3" at the top of the gables on each side of the structure. As with the original pen, the logs in the kitchen are mostly pine. Oak was used for the top logs on either side of  the pen, which extend about 16" to support the lower roof purlins. The supporting logs are chamfered at the ends, a detail not found on the original log pen.

The roof purlins are pine logs, left in the round, and extending about 3½' to the south to shelter a now-missing chimney and about 6'-8" to the north to provide a roof for the dog trot. In addition the top three wall logs on the front and on the rear were also extended over the dogtrot which created low openings that were barely 5'-8" high. The lower log on the east (front) end of the dog trot has been removed. The roof is similar to that on the original pen, including split oak battens, slab-sawn decking, and remnants of a machine-sawn, wood shingle roof.  

A fireplace opening, 6'-9" high by 4'-10" wide, in the center of the south wall is now covered by boards nailed over the outside of the opening. The chimney has disappeared although there are remnants of red clay mortar between the logs above the opening and a shallow pile of rubble and stone at the base. At least some of the large hearth stones remain under the floor. Although the kitchen fireplace was replaced or augmented by a wood-burning stove in the southwest corner of the kitchen some time after the Civil War, the chimney itself may have remained standing until well into the twentieth century.

Log joists and plain sawn boards complete the floor of the pen. Horizontal battens cover the interstices between the logs, including in the gable ends and there is no evidence that the space ever had a ceiling. A pair of poles span the south side of the pen and appear to have been installed to support a short brick or stone chimney for a wood-stove.

The room is entered by two door openings: a 3'-4" by 5'-6" opening from the dogtrot and a 2'-9" by 5'-6" opening on the front (east side) of the pen. Only the front door, constructed like the doors in the original pen, remains in place. Two small “window” openings flank the fire place opening: a 15"-square opening, set about 24" from the floor on the east side and a rectangular opening, 10" x 14", 29" from the floor, on the west side. Neither opening has been glazed although wood shutters may have been present at one time.

The dogtrot is also floored with plain-sawn boards which are supported by four log joists running the length (east-to-west) of the dogtrot. A series of bored holes with large pegs can be seen on the floor near the kitchen door; their purpose has not been determined unless they were originally used in place of nails to fasten the boards in place. If so, they are not found except in front of the doors. Pairs of similar holes were also drilled in the several of the logs on either side of the door into the original log pen. Chris Brooks, an historian of folk life and now director of the Folk Pottery Museum of Northeast Georgia, has suggested that these probably held short pegs or dowels which were used to warp yarn for weaving cloth.

Figure 34. View of north end of rear addition.(Author's photograph, 2008)

 

Rear Addition

The rear addition, measuring about 9' by 21', spans the rear of the kitchen and dogtrot and is attached at its northeast corner to the west wall of the original log pen. Although it must have functioned as a separate room, this addition does not include any wall across the rear (west) end of the open dogtrot. A door opens near the center of the west side of the addition and a shuttered, unglazed window opening lights the south end of the space.

Most of the north wall of the addition has been lost, apparently to rot that occurred in conjunction with damage to the southwest corner of original log pen.The addition contains an interesting mixture of construction methods and techniques. Sills, headers and posts are hewn square; log joists are hewn flat on top; and the joists are set on a sash-sawn ledger pegged to the kitchen sill. The walls and roof, however, are framed with a variety of sawn lumber, most of it full-dimensioned 2" by 4" put up with wire nails but also including some sash-sawn material and cut nails. The character of this addition and other alterations to the house suggests that the Carneses used sawn materials and nails left over from earlier projects or else salvaged and recycled from elsewhere.

Figure 35. West side and north end of the corn crib. (Author's photograph, 2008)

Figure 36. West and sotuView northeast of corn crib. (Author's photograph, 2008)

The walls are not studded but have only an open framework against which the exterior board-and-batten siding was installed. The boards are circular-sawn, mostly about 12" wide, and finished with 1" by 4" battens using wire nails. There is no evidence for interior wall or ceiling boards in this space.

 

Corn Crib

Located on the east side of the road about 285' south of the house, the corn crib is a wood-framed structure with a metal roof that appears to date to the late nineteenth or early twentieth century. The structure measures about 10'-6" x 20'-5", rising to about 10' on the sides and 12-1/2' on the gabled end. The building is constructed on log sleepers that are set on stones and which support log floor joists and a board floor. The walls and roof of the building are framed with circular-sawn posts, studs and roof purlins. The exterior is finished with horizontal boards, 3"-4" wide and spaced about 2" apart in order to provide ventilation for the crops stored inside.

The structure is divided into two, unequally-sized spaces by a simple boarded partition set about 6-1/2' from the south end of the structure. A small door (about 2' x 4') on the west side of the structure opens to the larger pen; a similar door at the south end opened to the smaller pen but is now missing. Above the door on the west side is another opening with a bottom-hinged door, presumably so that the pen could be filled from the top with hay or fodder.

 

Log Barn

Figure 37. Sheltered ruins of log barn. (Author's photograph, 2008)

Across the road and a few feet further south from the corn crib is a dirt-floored, log barn that appears to have been built for animal shelter. It measures about 12' x 21' and is put up with 7"-8" logs, V-notched at the corners. The shed roof of the structure has log rafters, 2" by 4" purlins, and a metal roof that may be contemporaneous with the first metal roof on the main house. The roof slopes from the south wall, which is about 8' high, to the north wall, which is about 6' high. A log wall divides the structure into two pens, the eastern pen being slightly smaller than the other. Both pens are entered through low doors on the south side and the eastern pen has a wooden feed trough attached to the east wall. Because of the collapsed roof, the interior of the western pen could not be investigated. Because of the building's advanced state of decay, restoration is not possible, although the building might, with further investigation, be accurately reconstructed. One of the author's recommendations in the original report was that a free-standing roof be erected to simply shield the ruins from the elements, which was carried out the following year.

Figure 38. Looking north from kitchen, through dogtrot to original log pen. (Author's photograph, 2019)

 

Notes

1. Historical data on the family has been taken the Federal censuses and from <http://www. jimharrisononline.com/Genealogyfamily/notes/not0000.html>.

2. The area became part of Douglas County when it was created in 1870.

3. Mills B. Lane, editor, The Rambler in Georgia (Savannah: Beehive Press, 1973), 77.

4. A local resident interviewed by the author moved to the area in the early 1950s and remembered these last tenants who, he reported, made much of their living making moonshine in the woods nearby. They were living in the house as late as 1955.